Kunngjøring: vedtatt mindre endring av reguleringsplan – Detaljregulering for Skytterhusfjellet felt B2F (planID 2013002)

Utvalg for plan- næring og samferdsel vedtok 20.10.2025, sak 75/2025, endringer i Detaljregulering for Skytterhusfjellet felt B2F (planID 2013002). Søker er Sør-Varanger kommune v/ eiendomskontoret.

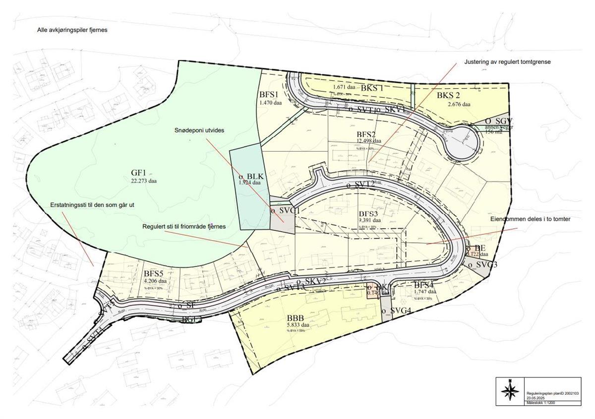
Plankart Felt B2F Skytterhusfjellet - Klikk for stort bildePlankart etter endring - Felt B2F Skytterhusfjellet

Endringene inkluderer:

1. Omregulering av turvei (o_GTD5) til boligformål (BFS5).

2. Deling av boligtomt med gbn 26/230 i to boligtomter. Grunnet terrenget er det satt bestemmelser om sokkel.  

3. Justering av regulert eiendomsgrense mellom boligtomtene gbn 26/239 og 26/238.

4. Utvidelse av snødeponi (o_SVG1).

5. Presisering av bestemmelser for avkjørsler.

6. Gjøre det lettere å opprette eiendom, og justere eiendomsgrenser.

7. Åpne opp for at det kan bygges tomannsboliger (uten utleiedel) på de fem ubebygde boligtomtene i nord. Bestemmelser for tillatt høyde og takform justeres noe.

Vedtak i sak 75/2025:

«I medhold av plan- og bygningslovens § 12-4 andre ledd vedtar utvalg for plan, næring og samferdsel endringer av Detaljregulering for Skytterhusfjellet, felt B2F (planID: 2013002), iht.:

- planbestemmelser revidert 08.10.2025, med følgende justeringer:

«3.1.3 h) Tomt merket med A i plankartet skal bebygges med sokkel. Tomt merket B kan bygges uten sokkel. Overkant gulv første etasje for begge tomter skal være 60-80 cm over vei o_SKV2 (Prestevannslia).»

 

Denne bestemmelsen legges til:

«Det kan etter søknad tillates flere avkjøringer til feltene BKS1-2. Avkjøringene skal være fra o_SKV1.»

- plankart datert 23.05.2025, med følgende justeringer: Tomt A og tomt B skal merkes i plankartet.


Planbeskrivelsen vil oppdateres etter vedtaket er fattet.

Begrunnelse: De omsøkte endringene vil ikke påvirke gjennomføringen av planen, gå utover hovedrammene i planen, eller berøre hensynet til viktig natur- og friluftsområder, jfr. krav i plan- og bygningslovens §12-14. Konkret begrunnelse fremkommer av saksfremlegget.

 

Uttalelsene fra berørte høringsparter og andre har blitt vurdert, og det er konkludert med at merknadene som har kommet inn ikke er av en art som vil gjøre at endringen det er søkt om ikke kan føre frem, eller ikke kan behandles etter forenklet prosess.

Endringene fører til at reguleringsplanen bedre legger til rette for behovet og etterspørselen i boligfeltet.»
 

Planvedtaket kunngjøres iht. plan- og bygningslovens § 12-12. Vedtatt reguleringsplanendring er straks bindende for framtidig arealbruk i området.

Oppdaterte plandokumenter

Planbestemmelser (PDF, 234 kB)

Plankart (PDF, 4 MB)

Planbeskrivelse (PDF, 3 MB)

Saksfremlegg (PDF, 180 kB)

Se også: arealplaner.no | 2013002 > Plandokumenter. OBS: det kan ta tid før reguleringsplanen blir oppdatert i Kommunekart.

Behandling av saken: 

Dokument 25/23642 - Til behandling – Mindre endring av Detaljregulering for Skytterhusfjellet, felt B2F – planID 2013002 - Sør-Varanger kommune

Saksdokumentene er også tilgjengelig på servicekontoret på rådhuset i Kirkenes, fram til klagefristen utløper.

Orientering om klageadgang: 

Dette vedtaket kan påklages av parter og andre med rettslig klageinteresse. Klagefrist er 3 uker fra kunngjøring av vedtaket. Klager kan sendes til Sør-Varanger kommune, boks 406, 9915 Kirkenes, eller til postmottak@svk.no

Eventuelle spørsmål kan sendes til postmottak@svk.no

Vennligst oppgi vår referanse 25/4103 ved alle henvendelser angående saken.

option-1