Til offentlig ettersyn - Detaljregulering for Lanabukt Sør-Varanger kommune legger forslag til detaljregulering for Lanabukt-Gammelheimen til høring og offentlig ettersyn, jfr. plan- og bygningslovens § 12... Publisert 16.02.2026 kl. 15.48
Til offentlig ettersyn flåteplassering Storbukt I henhold til Lov om akvakultur av 17.06.2005 med forskrifter, legges følgende søknad ut til offentlig ettersyn:Søknad om endring av flåteplassering v... Publisert 04.02.2026 kl. 09.32
Til offentlig ettersyn - Forslag til detaljregulering for ny kontrollstasjon i Neiden - planid 2025001 Utvalg for plan, næring og samferdsel har i møte 05.12.2025, sak 104/2025 vedtatt å legge ut planforslaget for ny kontrollstasjon i Neiden til høring ... Publisert 19.12.2025 kl. 15.29
Varsel om oppstart av planarbeid - Detaljregulering for Kirkenes kirke – gnr/bnr. 27/8 m.fl., PlanID 2025002 MaPlan AS gir med dette melding iht. plan- og bygningsloven § 12-8 om at følgende planarbeid blir satt i gang: Detaljregulering for Kirkenes kirke – g... Publisert 10.11.2025 kl. 12.45
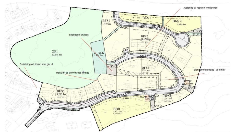
Kunngjøring: vedtatt mindre endring av reguleringsplan – Detaljregulering for Skytterhusfjellet felt B2F (planID 2013002) Utvalg for plan- næring og samferdsel vedtok 20.10.2025, sak 75/2025, endringer i Detaljregulering for Skytterhusfjellet felt B2F (planID 2013002). Sø... Publisert 22.10.2025 kl. 15.38
Planprogram - Kommuneplanens samfunnsdel 2026-2038 Vedtatt i kommunestyret 05.02.2025. Publisert 03.10.2025 kl. 14.54
Kommuneplanens arealdel 2018-2030 Dette er den vedtatte arealplanen for Sør-Varanger kommune for perioden 2018-2030. Publisert 03.10.2025 kl. 14.51
Varsel om oppstart og høring av planprogram - Detaljregulering for Ekhaugen miljø- og næringspark I henhold til Plan- og bygningslovens §§ 12-3, 12-8 og 12-9, kunngjøres det herved oppstart av detaljregulering (PlanID: 5605 2024 003) og høring av p... Publisert 03.10.2025 kl. 13.42
Kunngjøring av vedtatt reguleringsplan: Detaljregulering for Direktørboligområdet Detaljregulering for Direktørboligområdet ble vedtatt av Sør-Varanger kommunestyre i møte 26.06.2024, sak 90/2024 (planID 5444-2012012). Vedtatt regul... Publisert 12.09.2025 kl. 12.21